2/7(土)8(日)開催!名塚町の家完成見学会のお知らせ
設計の仲田です。完成見学会のお知らせです。
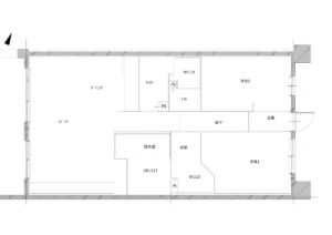
今回は2002年竣工の物件。築年数は約24年、84㎡と築浅で少々広めの物件です。リノベ前の間取りがこちら。

よくある南北型ですが、珍しくキッチンが対面型ではなく、奥まったところに隔離された感じの配置。
3部屋の洋室もかなりゆったりとした空間で、たぶん、こういう間取りって今ではかなり贅沢なつくりではないかと・・
さてキッチン配置は言うまでもなく今の時代の暮らし方とは少々合わないですが、住まいは広さはあるものの、収納量がものすごくたくさんあるわけではない。
LDも広いんですけど、ただ広いだけで少々過ごしにくい面もある・・・冬の北側の2部屋はもちろん寒いわけですしね。
今回のリノベでは、断熱施工をする面積がすくないこともあって、性能面とコスト面を考慮して厚さ60mmの断熱材を張りつけることにしました。
今の新築のマンションの断熱吹付厚みが20~30mm程度なので、単純な壁の断熱性能としては元の倍以上の性能になります。
基本的な断熱性能を高めると、寒い冬の時期の工事も寒くない。
これは現場で工事をしている大工さんがとくに実感していることで、作業中は暑くなるくらいなので薄着で作業しています(笑)
こういう見えないところを、しっかりと施工することが肝心です。見えないところでもう一つ大切なのが配管部分。
リノベーション工事と言ってもその工事内容は非常に幅が広く、古い配管も利用する事例も多いと思います。
でも将来、もしもこの古い配管からの漏水事故が生じても、リノベーション会社は責任はとりません。
まあ、当然と言えば当然なんですが、でも、せっかくリノベーションをするなら、この先の漏水事故のリスクは可能な限り排除しておきたいところ。
私たちも工事後に「漏水した!」って言われるのが一番怖いので、古い配管部分はすべて撤去して新しくやり替えています。
こうすればもし漏水事故が生じたとしても、胸を張って?私たちの責任となるわけです(;^_^A
さて、今回のリノベはお二人で暮らす住まいなので、全体的にかなりゆったりとした計画ですが、リノベプランのポイントの一つが浴室の位置。
まあまあ大きく移動してます。それによりどんな効果がうまれたのか?ぜひ現地で各部屋への動線を確かめて頂けたらと思います。
あ、今回、床の杉板に柿渋塗装をしました。この色がまためちゃめちゃよくてですね。これはぜひ見てほしい部分の一つです。
写真だとその本当の色味まではよくわからないので・・
冬の見学会では実際の暖かさがどうなのかを体感するのが本当にベストで、どれだけ言葉で説明してもなかなかピンとこない方もいるはず。
ぜひ部分的にしか温められない床暖房では得られない快適さを体感しに来てくださいね!
例によってメルマガ先行案内なので時間帯もある程度埋まってますが、この機会に、見学にお越しくださいませ。
【名塚町の家マンションリノベーション完成見学会】
希望日時をお申し込みください。
完全予約制です。
<開催場所>
庄内通駅から徒歩8分ほど
ホームページよりも早くイベント情報を知りたい!という方は下記からご登録くださいね。
メールアドレスだけの入力で、名前も不要なのでカンタンです♪
メルマガ登録はこちらからどうぞ!
<見学時のご注意>
見学時には手袋着用と簡易スリッパをして見学していただきますが、靴下の着用は必ずお願いいたします。靴下がない方は見学ができませんのでご注意ください。
小さなお子様連れの場合、室内を走り回ったり、壁をベタベタと触る、というようなことがないように見学の際にはご配慮ください。
これはやっぱりご好意で見学会に協力していただくオーナーさんへの最低限のマナーだと思ってますので、ご理解くださいね。


