11/22(土)23(日)開催!金山の家完成見学会のお知らせ
設計の仲田です。完成見学会のお知らせです。
今回の物件は金山駅近くにある1981年築、約67㎡。中古マンションを購入してからのリノベーションです。
築44年と聞くとかなり古いと感じる方が多いかと思います(笑)
古い物件にはいろいろな懸念点があると思いますが、下記にある程度まとめてありますのでよかったらご覧くださいね。
<参考リンク>
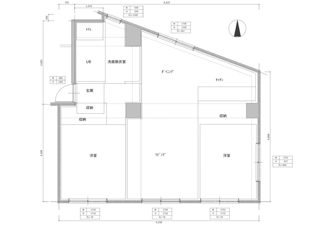
さて、今回の物件のリノベ前の間取りがこちらです。

よくある細長い形ではなくて台形型。ちょっと変わった形ですね。
もとのプランはLDKの面積自体は広いと言えば広いのですが、キッチンが非常に使いにくく、無駄なスペースが多くなります。
また玄関も狭く、基本的な収納がかなり少ない・・・非常に暮らしにくいんですよね・・・
今回のリノベでは、浴室とキッチンの位置を大きく移動させ、回遊できる動線に変えました。
回遊性があると個室やWCLO、脱衣室など、各スペースへの行き来がとてもよくなり、同じ面積でも暮らしやすさが格段に変わります。
また家の中の空気がよどみにくくなり、家の中の温度差もあまりありません。
このあたり、写真や動画を見たとしても、なかなか実際の感じはわかりにくいところ・・(;^_^A
とくに面積がコンパクトな場合、実物のボリューム感とか、梁の出っ張りとか、高さとか、視線の抜けとかは、ぜひぜひ体感してほしいんです。
そうしないと、その本当の住み心地とか、使いやすさ、広さ感、といったものは、まず間違いなく、正しく把握できないので・・・
もちろん、絶対的な面積の大きさがありますから、67㎡の住まいがものすごく大きくなるわけではありません。
それでもこの大きさで、こんな暮らしができるんだ、という可能性と魅力をこの機会にぜひ、体感してほしいです。
例によってメルマガ先行案内なので時間帯もある程度埋まってますが、この機会に見学にお越しください。
【金山の家マンションリノベーション完成見学会】
希望日時をお申し込みください。
完全予約制です。
<開催場所>
金山駅から徒歩4分ほど
ホームページよりも早くイベント情報を知りたい!という方は下記からご登録くださいね。
メールアドレスだけの入力で、名前も不要なのでカンタンです♪
メルマガ登録はこちらからどうぞ!
<見学時のご注意>
見学時には手袋着用と簡易スリッパをして見学していただきますが、靴下の着用は必ずお願いいたします。靴下がない方は見学ができませんのでご注意ください。
小さなお子様連れの場合、室内を走り回ったり、壁をベタベタと触る、というようなことがないように見学の際にはご配慮ください。
これはやっぱりご好意で見学会に協力していただくオーナーさんへの最低限のマナーだと思ってますので、ご理解くださいね。


